Set amongst the trees in the ever-popular South Hobart, this charming brick home offers a peaceful lifestyle with beautiful outlooks toward kunanyi / Mount Wellington.
The light-filled open plan living and dining area enjoys leafy treetop views and features warm timber flooring, creating a welcoming and relaxed space to unwind. A split-system air conditioner provides year-round comfort.
The updated kitchen is both functional and stylish, complete with wooden benchtops, electric cooking, fridge recess and a built-in pantry. The laundry is conveniently located off the kitchen with direct rear access, ideal for everyday living.
Accommodation includes generously sized, carpeted bedrooms fitted with roller blinds, offering comfort and privacy. The home is thoughtfully laid out and well suited to those seeking space, natural light and a connection to nature.
Located just minutes from South Hobart, local cafes, schools and walking tracks, this home combines tranquility with convenience.
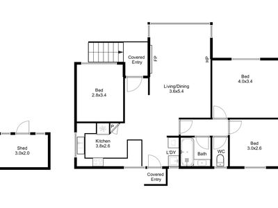
Features include:
• Solid brick home with kunanyi / Mount Wellington views
• Nestled amongst the trees in a quiet setting
• Open plan living and dining with timber flooring
• Light and bright interiors with leafy outlooks
• Split system air conditioning
• Updated kitchen with wooden benchtops and built-in pantry
• Electric cooking and fridge recess
• Laundry off kitchen with rear access
• Generous carpeted bedrooms with roller blinds
• Updated bathroom
• Garden shed to rear yard
A wonderful opportunity to enjoy the best of South Hobart living. Contact Homelands to arrange a showing or submit your application today via https://app.snug.com/apply/homelandspropertyhuonville.


























