This affordable holiday home is located only a short stroll from the highly sought after Roaring Beach. This provides the ideal holiday retreat or permanent residence. Situated on a large 2685m² block, the land is mostly pasture with a couple of established trees and boasts an abundance of space for the boat or caravan.
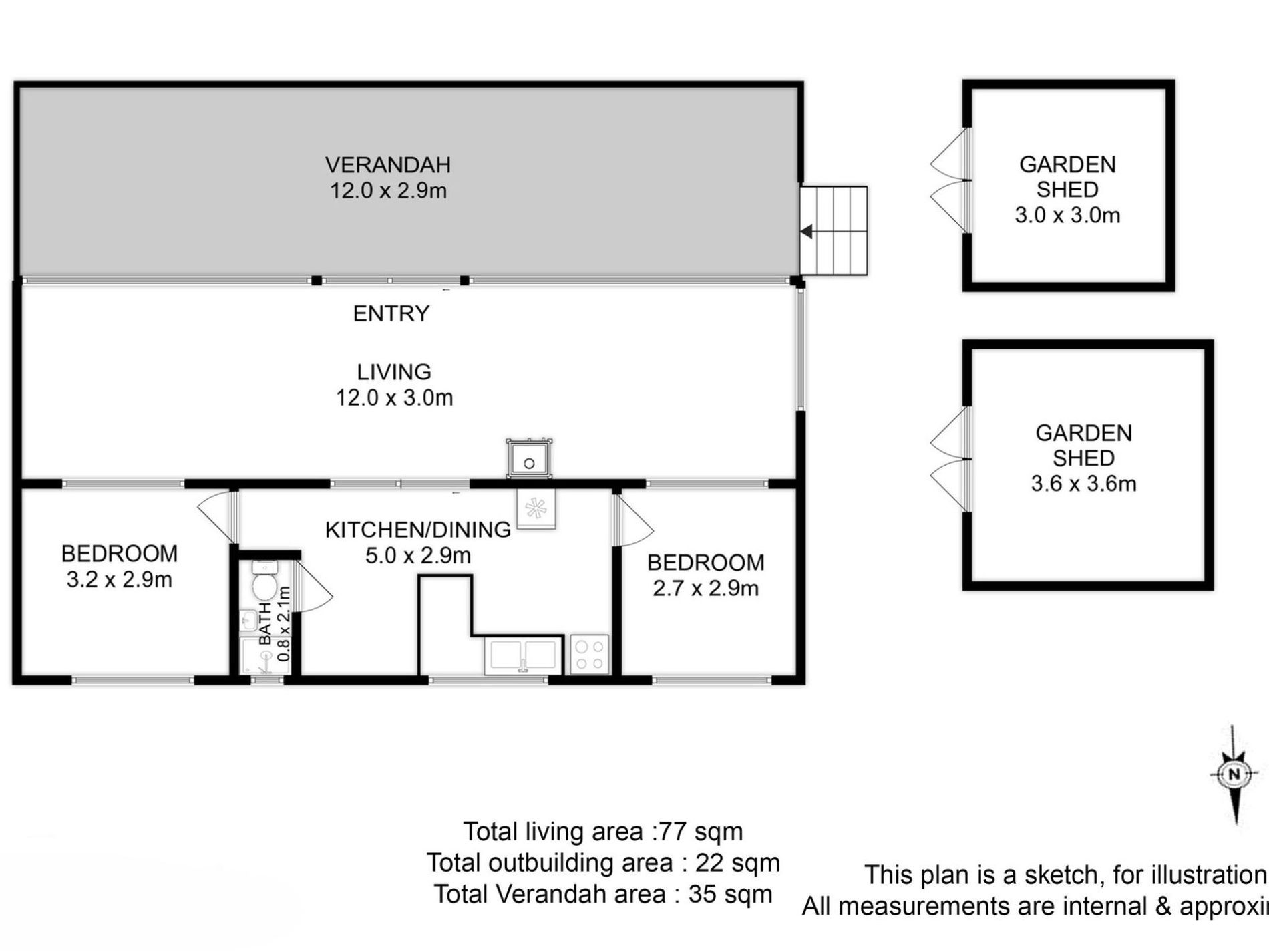
Inside, the home features two generous sized bedrooms, each with plenty of natural sunlight from the north facing aspect. The bathroom is compact and practical, featuring a free-standing shower, toilet and vanity. An open plan kitchen includes stone benchtops, breakfast bar, a double sink and plenty of storage.
Adjacent to the kitchen is a spacious 12x3m enclosed area that is currently being used as a large living space but does also have the potential for conversion into additional rooms. This room includes a wood heater, perfect for keeping cozy during winter. Glass sliding doors open onto a large covered deck area, ideal for entertaining, relaxing, and enjoying breathtaking water views and of South Bruny Island in the distance.
Outside, the property offers two 3x3m2 garden sheds, two water tanks and is fully fenced, providing plenty of space for outdoor recreational activities like holiday cricket games, while also providing room for future landscaping if desired.
Located just over an hour’s drive from Hobart and a short 10-minute drive through the scenic Huon Valley to the local township of Dover, this property offers a peaceful escape from the city while still being close to grocery shops, a Post Office, a fuel station, school, and medical facilities.
With so much potential, this affordable opportunity in the popular Roaring Beach area won’t last long!
Contact Jordan Phillips today for more information or to arrange a private inspection.
Disclaimer:
The information contained in this listing has been supplied to Win Em All P/L trading as Homelands Property from a variety of sources and to the best of their knowledge.
The Agents are unable to verify whether the above information is accurate. All interested persons should make and rely upon their own enquiries in order to determine whether or not the information is, in fact accurate.
- Deck
- Fully Fenced
- Water Tank


















































